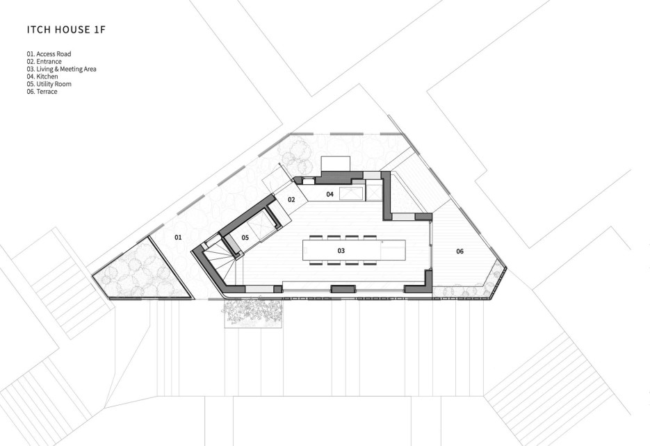
프로젝트 이치 하우스ㅣ아틀리에 이치 二致, 서로 다른 둘이 합치되는 것. 중구 신당동 성곽공원 앞 골목길에 위치한 이치하우스는 공간 디자이너 부부의 신혼주택이다. 서로 다른 스타일을 가진 둘이 만나 하나의 뜻을 이루고자 하는 이 곳은 이들을 위한 보금자리이자, 새로운 시작의 도약이 될 수 있는 작업 공간으로 계획되었다. Keywords AtelierITCH 아틀리에이치 정진욱건축가 이유림건축가 ItchHouse 이치하우스 신당동 신혼주택 보금자리 작업공간 숨을고를수있는편안한분위기 밝은아이보리의벽돌 벽돌사이로새어나오는빛 작은정원 공간쌓기 공간감확장 구들장 시간성이담긴출입구 사람들을초대 작업 긴테이블 대나무의푸르름 빛이공간안으로확장 우드톤 확장감과편안함 건식화장실과습식욕실구분 작은집 좋은영향을줄수있는건축물 이치하우스는 주변의 높고 빽빽한 건물 사이, 몇 십 세대의 집들 사이에 위치해 있다. 좁고 높은 계단길을 지나야만 만나게 되는 위치적 특성상 빼곡한 건물들 사이에 위치한 이 작은 집은 숨을 고를 수 있는 편안한 분위기의 건물이 되어야 했다. 주변을 밝힐 수 있는 밝은 아이보리의 벽돌과 벽돌 사이로 새어 나오는 빛, 그리고 작은 정원이 그러한 숨이 되기를 바랬다. 1층 내부에서 디자이너의 작업하는 모습이 외부로 비춰보이고, 테라스의 식재와 생기가 공간쌓기를 통해 지나가는 사람들에게 노출되어 보이도록 하여 공간감을 확장하였다. 기존의 건물의 출입구는 사람들이 지나다니는 길목을 바라보고 있었다. 현관문을 여는 모습이 주변의 몇 십 세대의 집들의 창문을 통해 바라볼 수 있다는 것은 주택으로서 가장 취약한 부분이라고 생각했다. 집을 둘러싸는 좁은 골목을 통해 건물 뒤쪽으로 돌아 들어올 수 있도록 해 프라이빗함을 높혔다. 또한 개구부가 없어진 건물의 정면은 벽돌을 쌓고, 난간부 또한 외장재를 사용해 파사드 면을 넓혀 존재감을 만들었다. 더불어 예부터 이 건물을 구성하고 있던 오래된 구들장을 재사용해 시간성이 담긴 출입구가 만들어졌다. 이치하우스는 1층 8평, 2층 7평으로 좁은 집이다. 요리하는 것보다 사람들을 초대하고 작업하는 시간이 많은 이들을 위해 1층의 주방공간은 축소하고 최대 12명이 앉을 수 있는 긴 테이블을 두었다. 테이블의 끝에는 테라스로 열리도록 하여 대나무의 푸르름과 빛이 공간 안으로 들여 확장감을 주었다. 바닥, 벽, 천장 모두 동일한 우드 톤으로 통일해 확장감과 편안함을 더하고, 모든 가구와 전자기들을 벽 안으로 숨겨 공간을 더 넓어 보이게 했다.하루를 시작하고 마무리하는 샤워공간에서의 시간이 삶의 질을 높혀준다고 생각하는 이들 부부는, 좁은 공간이지만 건식 화장실과 습식 욕실을 구분하여 넓은 욕조 공간을 구현하였다. 최근 공장처럼 동일한 모양새로 지어지는 아파트와 주택들에 대한 회의를 느끼며 우리만의 라이프 스타일을 구현할 수 있는 공간을 새 보금자리로 설계하고자 하였다. 윈스턴 처칠은 ‘사람은 건물을 만들고, 건물은 사람을 만든다’고 했다. 거주하는 이들의 취향을 반영하고 삶의 방식에 영향을 줄 수 있는 건물이 되기를 바랬다. 이처럼 라이프 스타일을 고려한 이 작은 집은, 앞으로의 미래를 그려나가는 부부에게 좋은 영향을 줄 수 있는 건축물이기를 바란다.ITCH HOUSEㅣAtelier ITCH 2021위 치 | 서울시 중구 신당동 Jung-gu, Seoul면 적 | 49.82 ㎡외 벽 | 스타코, 치장벽돌 Stacco, Brick바 닥 | 구들장, 강마루 Stone, Wood Flooring벽 | 무늬목 필름, 타일 Wood Film, Tile 천정 | 무늬목 필름, 도장 Wood Film, Painting창호 | 시스템 창호설계ㆍ시공 | 아틀리에 이치 Atelier ITCH대표 건축가 | 정진욱 Jinwook Jung, 이유림 Yourim Lee글 | 아틀리에 이치 Atelier ITCH사진 | 홍기웅 Kiwoong Hong