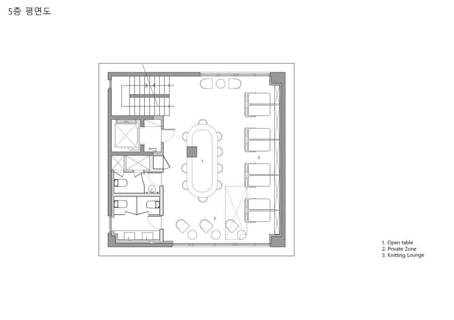
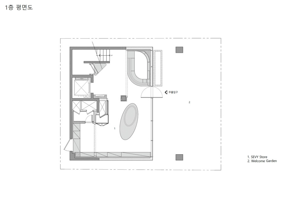
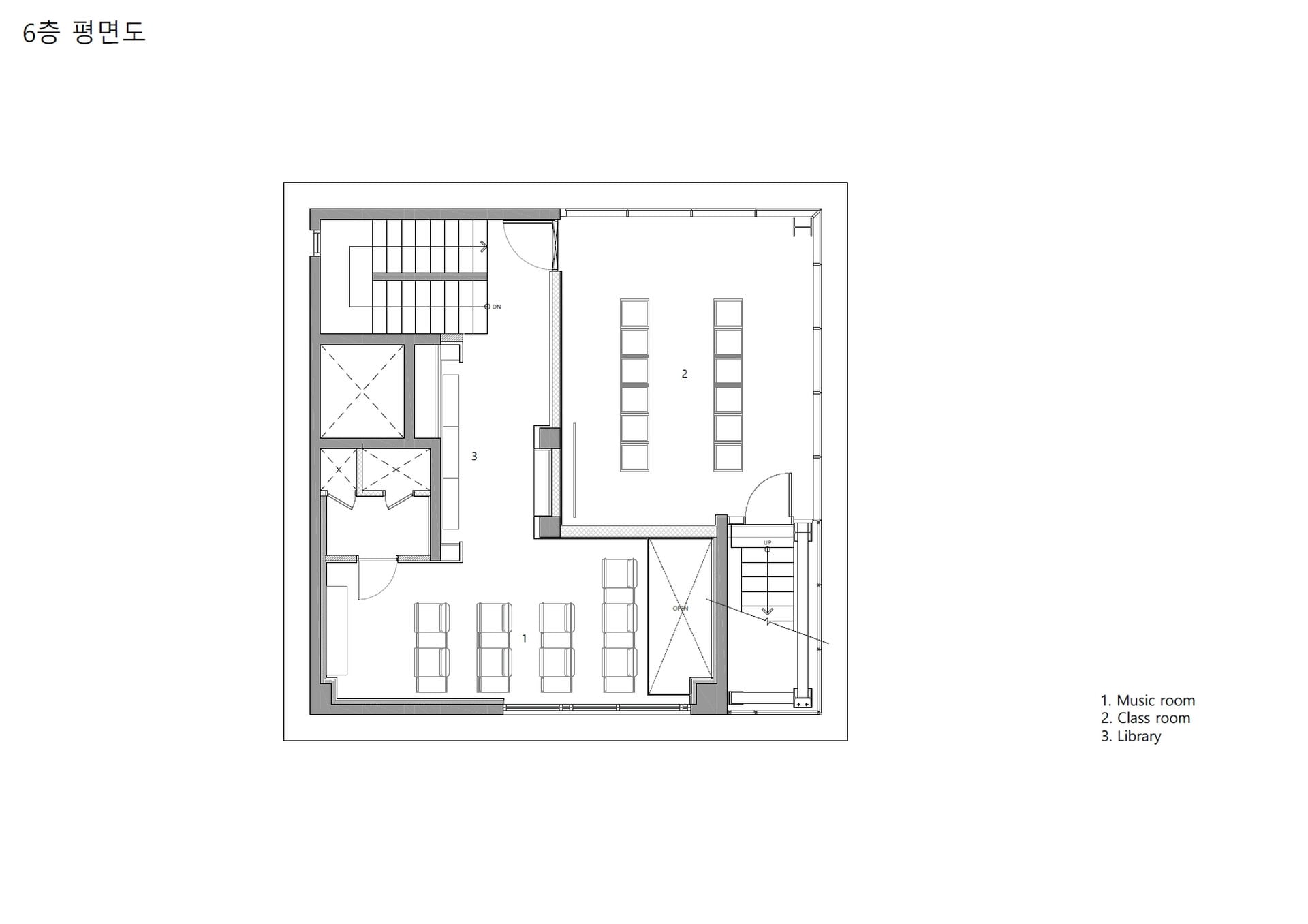
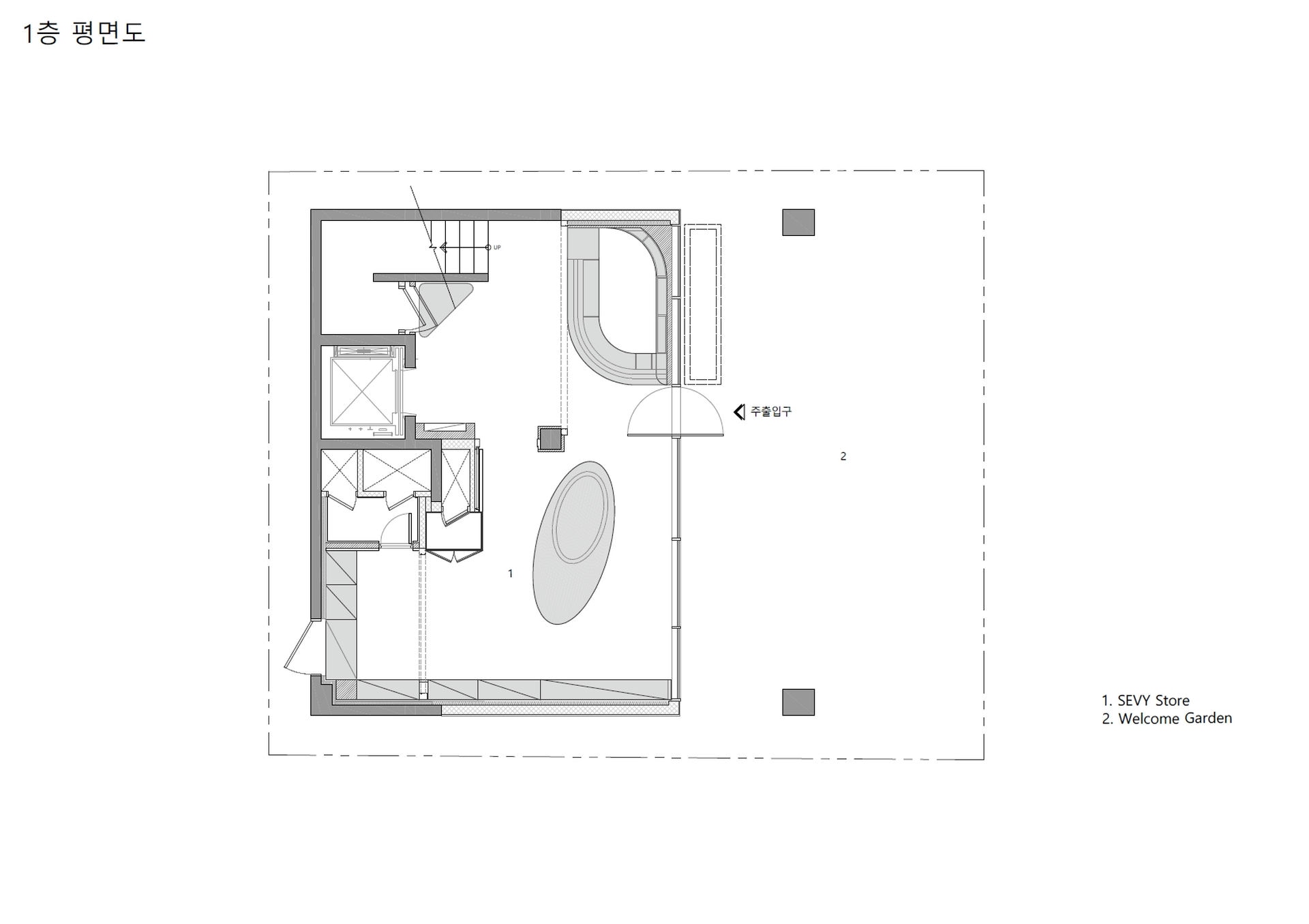
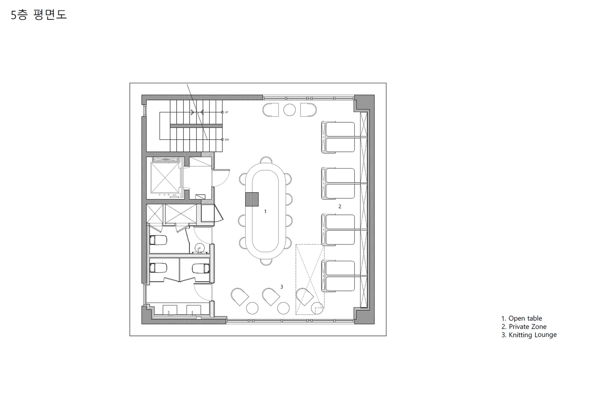
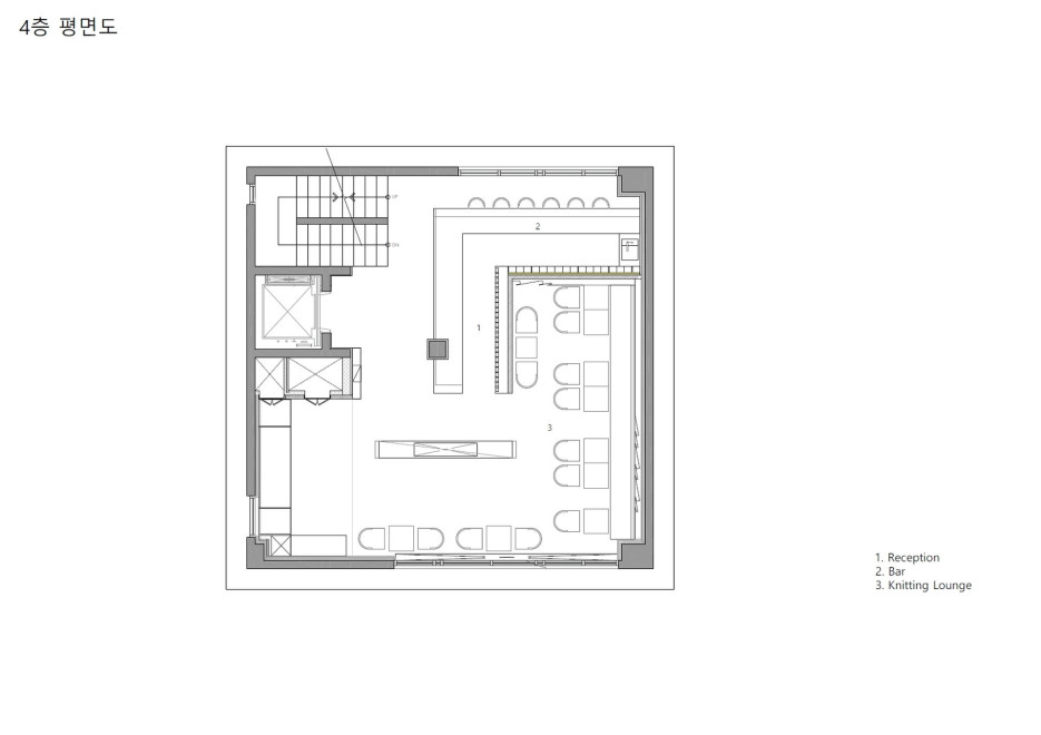
프로젝트 쎄비하우스ㅣ스튜디오캔 건축사사무소 쎄비하우스_성수에서 만나는 뜨개 문화 플랫폼 성수에 자리 잡은 7층 규모의 쎄비하우스는 온라인몰과 유튜브 채널을 통해 뜨개 문화를 확산시켜온 브랜드 쎄비가 오프라인으로 확장하며 만든, 뜨개를 체험하고 공유할 수 있는 복합문화공간이다. 기존에 오피스로 사용되던 건축물을 대수선한 공간으로, 1-2층은 자재스토어, 3층은 팝업갤러리와 디자인랩, 4-7층은 음악과 책, 커피와 간식을 즐기며 뜨개에 몰입할 수 있는 프라이빗 니팅라운지로 구성되었다. Keywords 스튜디오캔건축사사무소 STUDIOCANarchitects SEVYHAUS 쎄비하우스 성수 뜨개문화플랫폼 복합문화공간 팝업갤러리 디자인랩 니팅라운지 뜨개실색감 뜨개실촉감 경험공간 안락하고포근한감성 색감과촉감탐험 일상을잊는경험 비일상적인공간 부티크호텔테마 뮤직룸 세미나실 라이브러리 다양한컨셉좌석 뜨개실바닥카펫 뜨개실천장 마크라메실구조물 블랙터널 낯설음과편안함공존 쎄비하우스는 성수의 빠른 속도감과 다양한 컨텐츠들을 수용하면서도, 편안하고 따뜻한 무드 속에서 뜨개실의 색감과 촉감을 직접 느끼며 시간이 더 느리게 흐르는 듯한 경험 공간으로 만들고자 했다. ‘뜨개’하면 벽장 가득 실이 진열된 동네 사랑방 같은 전형적인 이미지들이 있는데, 뜨개 특유의 안락하고 포근한 감성은 지키면서도 다소 폐쇄적인 이미지에서는 탈피하고자 했다.전면 마당에서 이어지는 입구에는 시즌 쇼윈도를 연출하여 성수동을 오가는 사람들에게 뜨개 생활의 감성을 전하고자 하였다. 1층에서 2층으로 이어지는 자재스토어는 다양한 실들의 색감과 촉감을 탐험하듯 체험할 수 있도록 전시할 제품이나 작품 레이어들을 겹겹이 배치시켰다. 특히 2층은 천장의 커다란 링형태의 조명 구조물 아래로 양파 단면 같은 방사형 가구들을 배치하여 미로정원을 산책하는 듯한 즐거운 쇼핑 경험을 주고자 했다. 시선과 동선의 움직임과 머무름을 면밀히 검토하여 매대의 높낮이를 조정했으며, 전체 조도는 물론 매대 조명의 색온도와 그림자까지 고려해 실의 색감이 가장 잘 보이도록 세심히 조율했다. 3층 팝업 갤러리는 쎄비와 협업하는 작가들과 신진작가들의 판매와 홍보, 유통을 지원하는 상생구조로 운영되는 창작물 경험의 장이다.4층부터 6층까지 이어지는 니팅라운지는 뜨개하는 시간 동안 분주한 일상을 잊고 잠시나마 여행감성을 누릴 수 있도록 비일상적인 공간으로 기획하여 '부티크 호텔'을 테마로 디자인된 공간이다. 니터들이 선호하는 뜨개환경과 뜨개포즈를 고려하여 프라이빗존, 오픈테이블, 라운지체어, 뮤직룸, 세미나실, 라이브러리 등 다양한 컨셉의 좌석들을 배치하여 개인들의 취향을 존중하고 선택할 수 있는 재미를 주었다. 뜨개를 하지 않는 동행인도 편안하게 누릴 수 있는 아늑한 공간이다.5층과 6층은 뜨개실로 바닥 카펫과 천장을 가득 메우고 각 층마다 컨셉 구조물을 달아 매어 공간 자체를 거대한 뜨개 작품처럼 느껴지도록 했다. 5층 벽과 천장을 가득 메운 마크라메 실 구조물이 오프닝을 통해 6층으로 상승하며 이어지고, 기둥을 타고 회오리치며 하강하기도 한다. 계단을 타고 6층에 도착하면 바닥-벽-천장의 색상이 상대적으로 어둡고 좁은 복도에는 시선과 손이 쉽게 닿는 곳에 라이브러리가 조성되어 있다. 블랙터널은 삼각형태의 높은 천장의 공간감을 극대화하며, 벽을 타고 천장까지 가득 메운 마크라메 실 구조물 사이 부유하는 달조명들 아래 고품질 오디오로 음악 감상을 할 수 있다. 공간을 뜨개하고, 뜨개한 공간 속에서 뜨개하는 재미있는 상상의 결과물이다.뜨개에 대한 아이디어로 가득 찬 공간이 주는 낯설음과 편안함이 공존하는 곳에서의 체험을 통해 뜨개에 대한 호기심과 인식을 높이고자 하는 바람이 있었기에 가능한 일이었다.쎄비하우스ㅣSTUDIOCAN Architects 2025위 치 | 서울시 성동구 성수동2가 Seongsu 2-ga, Seongdong-gu, Seoul연면적 | 492.79㎡디자인 | ㈜스튜디오캔 건축사사무소 STUDIO CAN Architects책임 건축가 | 나애나 Aena Na, 최정석 Jeongseok Choi팀 원 | 최빈 Bin Choi, 한석원 Han Seokwon, 최한중 Choi Hanjoong, 정혜원 Jung Hyewon, 이다현 Lee Dahyun글 | ㈜스튜디오캔 건축사사무소 STUDIO CAN Architects사 진 | 제리그라퍼 Jerry Grapher