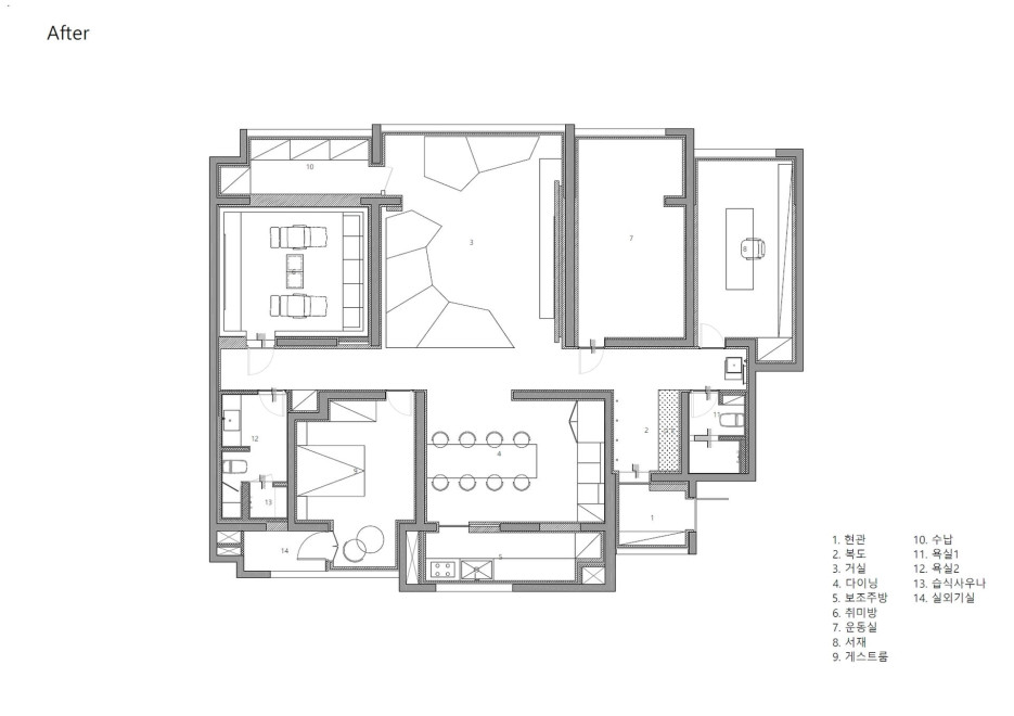
프로젝트 더블하우스_블랙ㅣ스튜디오캔 건축사사무소 DOUBLE HOUSE 더블하우스는 아파트 연속된 두 층에 거주하는 가족을 위한 집이다. 화이트하우스는 부부와 자녀의 일상을 담는 따뜻한 느낌의 거주공간이고, 블랙하우스는 가족의 여가와 취미활동, 손님들과의 관계를 위한 엔터테인먼트 공간이다. 아래 위층이 같은 구조이지만 색감부터 용도, 공간까지 모두 다르게 만들어서 거주하는 가족들도 편안함과 동시에 새로운 감각을 느낄 수 있도록 풀어내고자 했다. Keywords 스튜디오캔건축사사무소 STUDIOCANarchitects DoubleHouse 더블하우스 화이트하우스 WhiteHouse 거주공간 절제된공간 우아한아름다움 벽난로 블랙하우스 BlackHouse 엔터테인먼트공간 프라이빗한느낌 비워둔공간과벽 아트피스 [WHITE HOUSE] 뉴트럴 톤의 따뜻하고 아늑한 느낌을 주는 화이트하우스는 은은한 패턴의 박판타일과 세라믹, 고급스러운 텍스쳐의 스페셜도장을 베이스로 깔아서 절제된 공간 속 우아한 아름다움을 표현하려고 했다. 내력벽으로 인해 맞지 않는 선들을 정리하여 시원하게 트인 공간감을 확보함과 동시에 많은 짐들을 깔끔하게 정돈할 수 있는 수납장을 확보하는 것이 목표였다. 거실 수납장의 경우 하부에 가로로 긴 벽난로를 두어 포인트 요소로 활용하였다. 또한 용도에 따라 너무 깊숙한 서재공간은 방을 분할하여 팬트리를 확보하고, 안방욕실은 화장대 공간을 터서 부부가 넉넉하게 나누어 사용할 수 있도록 확장하였다. 전체적으로 따뜻하고 밝은 톤이지만, 드레스룸은 훈증무늬목을 메인 소재로 사용하여 분위기의 전환을 꾀하였다.[BLACK HOUSE] 블랙하우스는 재택근무가 용이한 서재, 노래와 게임이 가능한 멀티룸, 운동실과 사우나, 홈씨어터, 다이닝 바와 게스트룸까지 집 밖에서 할 수 있는 다양한 용도를 집안으로 들여온 엔터테인먼트 공간이다. 러프한 질감의 석재와 진그레이 타일 마감, 블랙계통의 액세서리와 디테일, 반사재료를 사용하여 집에서 경험하기 힘든 공간의 확장과 착시를 체험할 수 있는 공간을 만들고자 하였다. 현관 전실은 바리솔 천장으로 환하게 밝혀져 있으며, 입구 게이트를 지나 바위 조경을 거치면서 눈앞에 펼쳐지는 모습이 동굴처럼 조금은 어두우면서도 프라이빗한 느낌을 극대화해준다. 시선이 오랫동안 머무는 기다란 복도 끝에는 천장형 수전과 스탠딩세면대, 전신거울을 두어 복도를 더욱 깊이 있는 공간으로 연출하였다. 화이트하우스에서 거실은 블랙하우스에서 홈씨어터로, 주방은 다이닝바로, 각 방들 또한 그 쓰임이 다르다. 화이트하우스가 수납 공간을 확보하면서 구조라인들을 숨겼다면, 상대적으로 수납공간이 적어도 되는 블랙하우스는 내력벽을 기둥처럼 보이도록 볼륨을 추가하고, 보 라인을 살리고, 빈 벽체를 세워 구조 부재끼리 조화를 이루도록 하여 집 같지 않은 집의 컨셉을 유지하였다. 일부러 비워둔 공간과 벽에는 시간이 지남에 따라 집주인의 취향이 반영된 소중한 물건들과, 아트피스들이 자리잡을 예정이다. 두 집 모두 집주인의 취향과 선호도를 바탕으로 너무 화려하거나 튀는 컬러를 피하고 오래 봐도 질리지 않는 자재와 마감재 선정을 위해 실사에 가까운 CG와 현장테스트를 병행하여 만족스러운 결과를 얻었다. 더블하우스_블랙ㅣSTUDIOCAN Architects 2025위 치 | 안양시 동안구 호계동 Hogye-dong, Dongan-gu, Anyang-si연면적 | 142.68㎡디자인 | ㈜스튜디오캔 건축사사무소 STUDIO CAN Architects책임 건축가 | 나애나 Aena Na, 최정석 Jeongseok Choi팀 원 | 최빈 Bin Choi, 김보성 Kim Bosung, 이다현 Lee Dahyun글 | ㈜스튜디오캔 건축사사무소 STUDIO CAN Architects사 진 | 제리그라퍼 Jerry Grapher