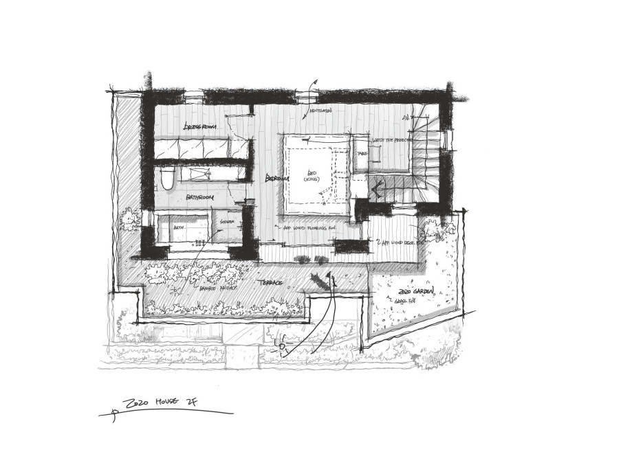
프로젝트 죠죠 하우스ㅣ아틀리에 이치 단순함 속 디테일로 삶의 풍요로움을 만드는 집 (섬세한 공간이 주는 즐거움과 충만함) 디테일에 예민한 사람은 그렇지 않은 사람보다 더 다양하고 풍부한 삶을 산다. 출근길의 하늘, 매일 걷는 길가에 생긴 변화를 인지하는 것, 사람들과의 관계에서 제스쳐에 담긴 의미를 이해하는 것 등 디테일한 사람의 삶은 훨씬 잘게 쪼개져 있고, 감각이 세분화되어 있다. 디테일하다는 것은 무언가를 정확하고 풍요롭게 누리는 것이기도 하다. 연필의 형태가 육각형인 덕에 책상에 내려놔도 굴러 떨어지지 않는 것, 수취인이 깔끔히 개봉할 수 있도록 서류봉투에 점선으로 칼집이 나 있는 것 등, 사소하고 실용적인 배려는 알아차리게 되는 순간 감동이 되곤 한다. Less is more. 간결할수록(Less) 더 풍성해진다(More)는 건축가 미스 반 데어 로에 (Ludwig Mies van der Rohe)의 말이다. 간결하게 만든다는 것은 단순히 삭제하고 단조롭게 만드는 것이 아니다. 기능적으로 필요한 것은 충족하되 그 기능(function)들이 눈에 띄지 않게 하는 것, 기능은 기능으로써의 역할만 할 뿐 미적으로 해치는 요소가 되지 않게 하는 것. 사소한 디테일과 숨겨진 배려를 담아 이 공간에 거주동안 찰나의 감동이 느껴지고, 그 감동이 쌓여 풍부한 즐거움을 줄 수 있는 집이 되기를 바랐다. Keywords AtelierITCH 아틀리에이치 정진욱건축가 이유림건축가 ZOZOhouse 죠죠하우스 단순함속디테일 삶의풍요로움을만드는집 섬세한공간 즐거움과충만함 사소하고실용적인배려 순간감동 LessIsMore 사소한디테일 숨겨진배려 단독주택 강아지죠죠 공간분리최소화 두개의테라스 이끼정원 디딤석 재료의분리 자작나무마감 히든도어 빛과대나무그림자 자연에서의풍성함 주택가 골목길 끝자락에 자리한 이 오래된 주택은 1층 20평, 2층 15평으로 된 단독주택이다. 기존 건물의 형(形)과 색(色)을 최소한으로 간결하게 정리하고 건물 밖 도로변과 담장 안 테라스, 2층 테라스의 식재를 풍성히 해 건물을 감싸는 식재의 형태와 그림자만으로 풍성하고 다채로워 보일 수 있도록 했다. 간결히 정리하는 과정에서 입구의 처마와 2층의 난간은 금속 소재를 사용해 최소한으로 표현했다. 집으로 들어서는 출입구, 그리고 문을 여는 행위 또한 건물 안쪽으로 형태를 밀어 넣어 숨김으로써 프라이버시를 보호했다.죠죠하우스는 30대의 부부와 강아지 죠죠가 거주하는 집이다. 층간 경계, 즉 벽이나 문으로 공간 분리되는 것을 최소화해 강아지 죠죠가 언제 어디든 돌아다닐 수 있는 집으로 계획했다. 손님이 왔을 때를 위한 게스트룸과 기능을 위한 공간(욕실이나 옷장)을 제외하고는 별도의 실 구획이 없도록 했다. 1층으로 들어서면 어둡고 긴 통로, 그리고 통로의 끝에는 어두운 목재 소재로 감싸진 실내 정원이 보이도록 구획했다. 통로의 양 옆으로는 신발장을 겸하는 수납으로 계획하되, 답답하지 않도록 상, 하부장 사이로 거실이 보일 수 있도록 했다. 그 뒤로는 주방이 위치해, 주방 싱크와 신발장이 하나로 연결되는 듯하지만 기능적으로는 완전히 분리되도록 계획했다. 1층 거실에서는 두 개의 테라스가 보인다. 외부와 면하는 작은 야외 테라스와 신발장 입구 쪽에 구성되어 있는 톤 다운된 실내 이끼정원이 있다. 이끼정원으로 구성된 곳은 건물의 정화조가 위치해 있다. 정화조를 외부로 이설하는 것도 고려했지만, 비용 측면을 감안해 그대로 둔 채로 반 야외의 공간으로 구성하는 것으로 설계했다. 덕분에 성격과 이미지가 다른 두 개의 정원을 함께 누릴 수 있도록 했다. 1층과 2층의 경계에 계단 한 칸 크기의 디딤석을 두어 1층과 2층의 상충되는 재료의 분리로 층의 경계를 나누는 소재로 활용했다. 디딤석과 자작나무 합판으로 벽과 천장이 감싸진 계단실을 지나면 2층에 다다른다. 계단실과 작은 서재의 벽과 천장은 자작나무 합판 소재 그대로 마감했다. 나무 본연의 질감을 그대로 살리고 그 사이의 창으로 들어오는 자연의 색이 유입되어 자연의 따스함이 스며들 수 있도록 했다. 침실과 계단실 사이에는 벽으로 구획되지 않는 서재를 두어 침실과 서재가 통할 수 있도록 했다. 2층 전체 공간을 넓은 침실로 구획하고 침실에서 드레스룸과 욕실로 들어갈 수 있는 도어를 히든 도어로 설계하여 침대에 누워 빔프로젝터를 사용해 저녁시간을 즐길 수 있도록 했다. 욕실의 큰 창 앞에는 시선을 가릴 수 있는 대나무를 식재해 프라이버시를 보호하면서도 자연을 즐길 수 있는 욕실이 되도록 계획했다. 주말 나른한 오전 시간, 빛과 대나무 그림자가 일렁이는 욕조에서의 샤워는 이들의 주말을 더욱 풍요롭게 만들 것이다. 2층 테라스로 나서면 다채롭고 풍성한 식재와 잔디밭으로 이루어진 정원에서 죠죠와 부부는 햇빛을 맡으며, 작은 정원의 자연에서의 풍성함을 느낄 수 있도록 했다.ZOZO HOUSEㅣAtelier ITCH위 치 | 서울시 동대문구 Dongdaemun-gu, Seoul면 적 | 112.65㎡ (34PY)외 벽 | 스타코 Stacco 바 닥 | 원목마루, 타일 Wood Flooring, Tile벽ㆍ천정 | 도장, 컬러 MDF, 합판, 타일, 원목데크 Painting, Color MDF, Plywood, Tile, Wood Deck 창호 | 시스템 창호설계ㆍ시공 | 아틀리에 이치 Atelier ITCH대표 건축가 | 정진욱 Jinwook Jung, 이유림 Yourim Lee글 | 아틀리에 이치 Atelier ITCH사진 | 홍기웅 Kiwoong Hong